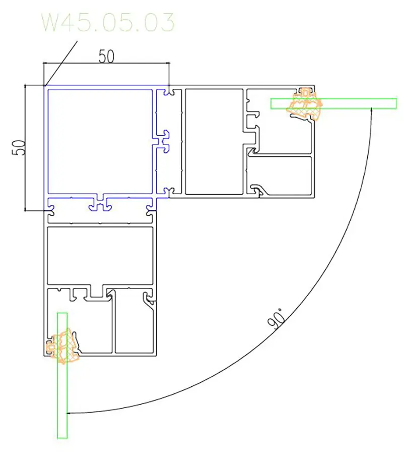
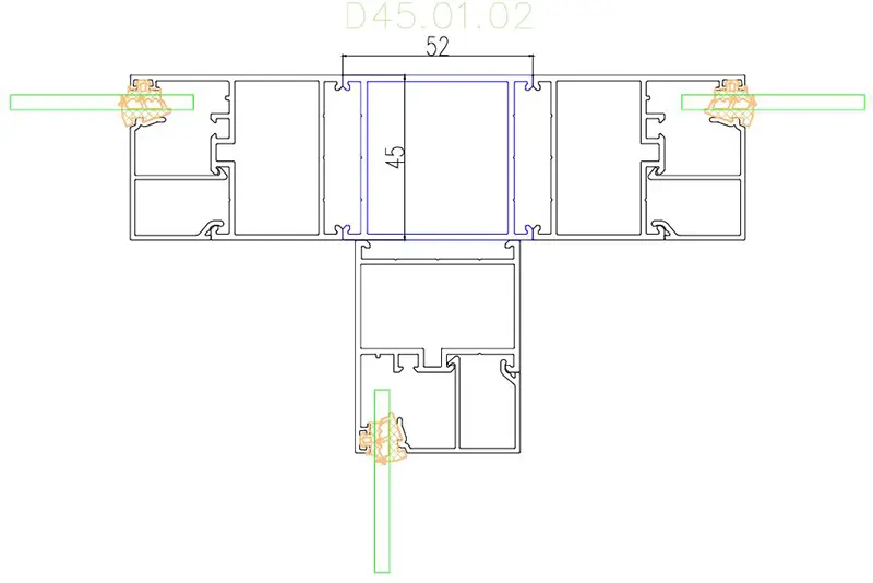
Алюминиевая профильная система TATPROF поддерживает все популярные типы соединений: линейные, угловые (с регулировкой угла от 90° до 270°), Т-образные и крестообразные. Данная универсальность позволяет реализовывать как типовые, так и самые сложные проекты светопрозрачных конструкций.
Угловое соединение перегородок


Т-образное соединение перегородок



